Aktuelles
April 2026
Langjähriger Partner Klarer Freizeitanlagen
Seit nunmehr über 20 Jahren arbeiten wir bereits mit der Firma Klarer Freizeitanlagen aus CH-Hallau zusammen. Wir erstellen die statischen Berechnungen für jegliche Arten von Rutschen im In- und Ausland in Zusammenarbeit mit Claudia und Stefan Klarer.
Heute erschien ein Artikel über die Hersteller der Wasserrutschen, diesen finden Sie unter folgendem Link:
März 2026
Stellenanzeige Bauzeichner (m/w/d)
Aufgrund von einigen neu gewonnenen Projekten möchten wir unser Team gerne um einen zusätzlichen Bauzeichner (m/w/d) erweitern – wir freuen uns auf Ihre Bewerbung.
Februar 2026
SiGeKo Kläranlage Donaueschingen
Vom Gemeindeverwaltungsverband Donaueschingen wurden wir mit den SiGeKo-Arbeiten für das Projekt Neubau 4. Reinigungsstufe der Kläranlage Donaueschingen beauftragt. Bereits im vergangenen Sommer wurde begonnen zwei alte Klärbecken rückzubauen, hier mussten mehrere Sicherheitsvorkehrungen aufgrund von Schadstoffen eingehalten werden. Die komplette Baugrube wurde danach ringsum mit einer Spundwand eingeschlossen, um die Wasserhaltung während des Bauzustandes zu kontrollieren. Im Januar begann dann der Neubau des eigentlichen Bauwerks. Wir begleiten das Projekt als SiGeKo bis zur Fertigstellung.
Januar 2026
Neubau Straßenmeisterei Schönau
In Zusammenarbeit mit dem Architekturbüro Eisenberg – Rummel fiel nun der Startschuss: Baubeginn für die neue Straßenmeisterei der Stadt Schönau. Vorab müssen 3-seitig um das Gebäude Winkelstützwände hergestellt werden, diese gründen dann auf dem tiefer gelegenen Wieseschotter. Die Fläche der verschiedenen Lager-, Wasch- und Fahrzeughallen ist mit einer Bodenplatte gegründet, die Wände werden teilweise als Halb-, teilweise als Komplett-Fertigteile hergestellt, Vorderseitig als Thermowände mit einer Beton-Außenschale, die Dachkonstruktion erfolgt in Holz.
Dezember 2025
Weihnachtsurlaub Ingenieurbüro Sättele 22.12.2025 – 09.01.2026
… ist denn nun schon wieder Weihnachten? 🌲🎅 Dieses Bild entstand bei der letztjährigen Weihnachtsfeier, die Geschäftsführung musste dem Nikolaus Rede und Antwort stehen. Gefühlt ist dieser Tag noch nicht allzu lange her, das Jahr 2025 verging wieder wie im Fluge.
Stand heute ergänzte sich im vergangenen Jahr unsere Auftragsliste um 321 neue Projekte. Diese erstrecken sich von ql²/8 [kNm] (einfach Gleichung für einen Einfeldträger mit gleichmäßiger Belastung) für z.B. einen Stahlträger als Ersatzkonstruktion für eine Tragwand, über kleinere Anbauten, Garagen und Carports, Neubauten sowohl im Wohnungs- als auch im Industriebau, mehrgeschossig in Massiv- oder Holzbauweise, auch Projekte in Stahlbauweise, Hallenkonstruktionen, Schwimmbäder, Rutschenanlagen, Sanierung denkmalgeschützter Gebäude, Wärmeschutznachweise, Sanierungsfahrpläne,… man könnte noch so viel weiteres hier aufzählen, die lange Liste ist breit gefächert, und das ist auch gut so. Wir bleiben innovativ, flexibel, und gleichzeitig immer auf dem neusten Stand der Technik.
Liebe Kunden und Geschäftspartner,
wir möchten uns bei allen für die gute Zusammenarbeit und die langjährige Treue bedanken, und freuen uns ebenso über die neu geknüpften Kontakte, um unser Netzwerk zu erweitern.
Wir machen eine kleine Pause – vom 19.12.2025 bis 09.01.2026 bleibt unser Büro geschlossen.
Wir wünschen allen ein schönes Weihnachtsfest im Kreise der Familie und Freunde, ein paar erholsame Tage sowie einen guten Start ins neue Jahr. Ab dem 12.01.2026 sind wir wie gewohnt für Sie da und starten mit neuer Energie voller Tatendrang ins kommende Jahr.
November 2025
Sanierung und Erweiterung Rathaus Eisenbach
Von der Gemeinde Eisenbach wurden das Ingenieurbüro Sättele in Zusammenarbeit mit dem Löffinger Architekten Dominik Ikic mit den Planungsleistungen für die Sanierung des Rathauses in Eisenbach sowie den Neubau des Sitzungssaals beauftragt.
Aus bauphysikalischen Gründen wurden im Bestandsgebäude unter anderem die kompletten ca. 70 Fenster gegen neue Kunststofffenster ausgetauscht, das Ganze fand während dem laufenden Betrieb statt. Außerdem wurde ein neues außenliegendes Treppenhaus in Massivbauweise erstellt.
Daneben sollte ein neuer Sitzungssaal entstehen, dieser wurde auf einer Bodenplatte gegründet, diese wiederum steht auf Stahlbeton-Wandscheiben auf, die auf Streifenfundamenten im bestehenden Hang aufstehen. Die Wände wurden als Holzrahmenbau-Wände gefertigt, das Walmdach besteht aus Brettsperrholz-Elementen. Die Wände erhalten nachträglich eine Putzfassade. Um einen barrierefreien Zugang zu diesem neuen Sitzungssaal herzustellen, wurde rückseitig der bestehende Hang teilweise abgegraben und mit einer Stahlbeton-Stützwand gesichert.
Oktober 2025
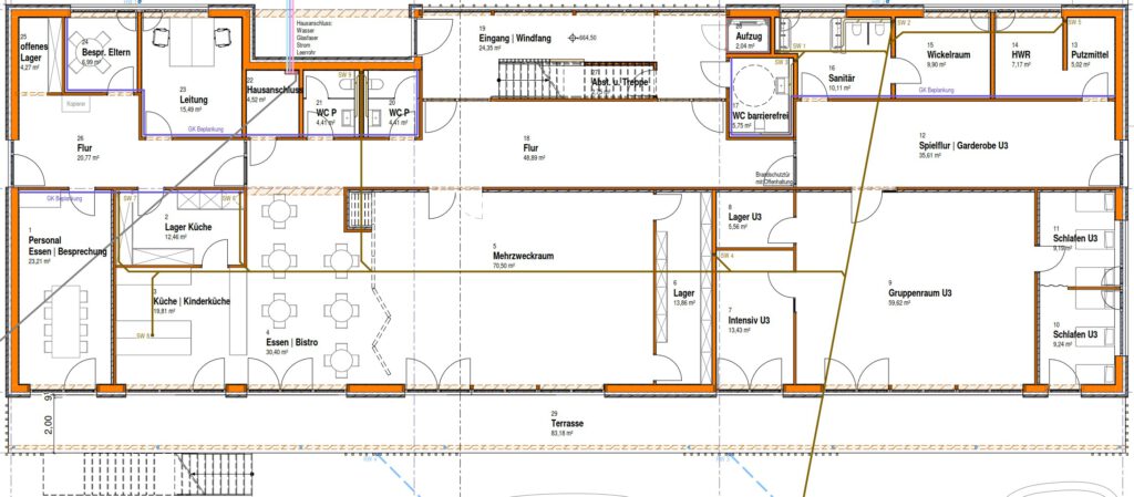
Neubau Kindergarten Immendingen-Zimmern
In Zusammenarbeit mit dem Architekturbüro Günter Limberger aus Donaueschingen-Grüningen sowie dem Büro mh Architektur aus Geisingen wurden wir von der Gemeinde Immendingen als Generalplaner-Team mit dem Neubau eines Kindergartens beauftragt.
Gegründet auf einer elastisch gebetteten Bodenplatte entsteht im Erdgeschoss ein großer Mehrzweckraum, ein Gruppenraum für Kleinkinder U3, mehrere Schlafräume sowie Verwaltungs- und Sozialräume. Alle Wände werden als Holz-Rahmenbau-Wände hergestellt, die darüberliegende Decke wird eine Holz-Beton-Verbund-Decke werden. Im Obergeschoss befinden sich noch weitere Gruppenräume, Technik- und Sanitärräume, die Wände hier sind ebenfalls als HRB-Wände geplant, die Dachkonstruktion ist ein flach geneigtes Satteldach mit klassischer Ziegel-Eindeckung.
Mit Spatenstich im Oktober beginnt nun die Baumaßnahme, Ende 2026 soll das Gebäude fertiggestellt sein.
September 2025
Umbau Neckartal 200
Von der Jetter Firmengruppe aus Rosenfeld wurden wir mit der Tragwerksplanung für den Umbau einer ehemaligen Pulverfabrik zu einem Verwaltungsgebäude beauftragt. Das Gebäude befindet sich im Gewerbepark Neckartal in Rottweil und trägt den Namen „Gewächshaus Neckartal 200“.
Für die Umnutzung musste die Gebäudeaussteifung neu berechnet werden, ausgeführt wurde diese neu als ergänzte Stahlkonstruktion, die bestehenden Decken (Stahlträger + Betonplatten) wurden ertüchtigt. In der bestehenden Halle wurden zwei neue Zwischenebenen in Brettsperrholz im obersten Geschoss ergänzt. Ein neuer Aufzugsschacht kam hinzu, außerdem ein Fluchttreppenturm aus Layher-Gerüstmodulen.
Das Endergebnis wurde von der Architektenkammer Baden-Württemberg prämiert – herzlichen Glückwunsch an die Architekten des Planungsbüros für Baukunst zur Auszeichnung „Beispielhaftes Bauen“.
August 2025
Sanierung denkmalgeschütztes Lycée Turenne in Freiburg
Mit Bernd Sättele als zertifizierten Tragwerksplaner für Gebäude im Denkmalschutz wurden wir auserwählt die Tragwerksplanung für die Sanierung des denkmalgeschützten ehemaligen Schulgebäudes durchzuführen. Auch hier wurde die Auswahl über ein VGV-Verfahren getroffen, bei welchem wir mit der Präsentation des Büros und den Erfahrungswerten die zuständigen Vertreter der Stadt Freiburg überzeugen konnten.
Der leerstehende Westflügel sowie die Turnhalle des Lycée Turenne sollen wieder einer Schulnutzung zugeführt werden. Im Westflügel wurden sogenannte koenen`sche Voutendecken verbaut, diese waren die Anfänge des Stahlbetonbaus um die Jahrhundertwende. Diese Bauart kann mit den heutigen Methoden des Stahlbetonbaus nicht nachgewiesen werden, die Konstruktionen haben aber offensichtlich einen Zeitraum von mehr als 100 Jahren ohne Schäden und Mängel überstanden. Um die Standsicherheit nachzuweisen, werden die Decken durch eine experimentelle Tragsicherheitsbewertung vor Ort untersucht. Hierzu sind im Vorfeld die Lastweiterleitungspfade mit den anfallenden Lasten im bestehenden Gebäude zu ermitteln.
Die ehemalige Turnhalle soll zu einer Mena umgenutzt werden. Die Turnhalle besteht aus einem massiv gemauerten eingeschossigen Gebäude mit Walmdach. Unter das Walmdach wurde ein Bogengewölbe in Stuckstruktur verbaut, das mit Drähten in das Dach gehängt wurde.
Juli 2025
Sachkundiger Planer für die Instandhaltung von Betonbauteilen
Thorsten Hasenfratz hat erfolgreich an einem Zertifikatslehrgang zum Thema Betoninstandsetzung teilgenommen. Nach 64 Unterrichtseinheiten in 3 Modulen über den Zeitraum von Februar bis Juli 2025 inklusive erfolgreich abgelegter Prüfung darf er sich nun offiziell „Sachkundiger Planer für die Instandhaltung von Betonbauteilen“ nennen.
Wir gratulieren herzlich zur bestandenen Prüfung und freuen uns, unseren Kunden mit qualifizierten Mitarbeitern ein weiteres Leistungsspektrum anbieten zu können.
Juni 2025
Sanierung + Erweiterung Steinriedhalle Freiburg-Waltershofen
Erneut ein gewonnenes VGV-Verfahren, von der Stadt Freiburg wurden wir mit der Tragwerksplanung und der Bauphysik der Sanierung und Erweiterung der Steinriedhalle in Freiburg-Waltershofen beauftragt.
Aktuell befinden wir uns noch in der Entwurfsplanungsphase, die Ausführung soll im Jahr 2027 beginnen. Geplant ist bisher die Aufstockung der angrenzenden Feuerwehr, ein Anbau mit großem Foyer, neuen Unterrichtsräumen, sowie eine Aufstockung für die Ortsverwaltung. Außerdem soll das Nebengebäude, ein ehemaliger Kindergarten, zu einem Jugendhaus umgebaut werden.
Bisher existieren hier die Entwurfspläne der H+O Architekten GmbH, mit voranschreitender Planung wird sich auch dieses Projekt nach und nach bis hin zur fertigen Ausführungsplanung zu Baubeginn entwickeln.
Mai 2025
Sanierung Kirche Reiselfingen
Von der römisch-katholischen Kirchengemeinde wurden wir mit der Bauleitung für die Sanierung der Kirche in Reiselfingen beauftragt. Dies beinhaltet vorab das Erstellen des Leistungsverzeichnisses für die Zimmererarbeiten, die Bauüberwachung und Dokumentation während der Ausführung, sowie im Nachgang die Rechnungskontrolle der beauftragten Firmen.
Im Einzelnen wurde der komplette Glockenstuhl erneuert, das Turmgebälk wurde saniert und teilweise erneuert, an der Außenfassade fanden Reparaturarbeiten statt, außerdem wurde die Fassade neu gestrichen. An Gesims und Dach fanden Blechnerarbeiten statt, die Zifferblätter der Uhr wurden neu lackiert, das Uhrwerk sowie das Schlagwerk wurden komplett erneuert.
April 2025
Neubau Rettungszentrum Weisweil
Ein weiteres zweistufiges VGV-Verfahren konnten wir erfolgreich für uns entscheiden – es handelt sich um den Neubau des Rettungszentrums in Weisweil.
Hier soll ein neues eingeschossiges Gebäude für Feuerwehr und DRK entstehen; Fahrzeughallen, Sozialräume, Schulungsräume. Alles zentral in einem Komplex. Die Ingenieurbüro Sättele GmbH wurde sowohl mit der Tragwerksplanung als auch mit der Bauphysik für dieses Projekt beauftragt.
Aktuell wird der Wärmeschutznachweis erstellt, die Statische Vorbemessung ist ebenfalls schon in Arbeit, das Architekturbüro Sennrich & Schneider aus Breisach erstellt auf dieser Grundlage die finalen Werkpläne, bevor wir in die endgültige Planung einsteigen können. Baubeginn für dieses Projekt soll dann im Jahr 2026 sein.
März 2025
Sanierung Kaiserstuhlbad Ihringen
In einem zweistufen VGV-Verfahren konnten wir uns mit passenden Referenzen gegen die anderen Mitbewerber durchsetzen und bekamen somit den Zuschlag für die Sanierung des Kaiserstuhlbads in Ihringen.
Hier soll das Schwimmbecken saniert werden, dem Technikgebäude stehen ebenfalls eine Sanierung sowie eine aufwendige Betoninstandsetzung bevor. Für die Filteranlagen kommt noch ein Neubau hinzu. Aktuell stehen wir hier in der Planungsphase in Zusammenarbeit mit der Sacker Architekten GmbH aus Freiburg, Baubeginn ist für April 2026 geplant.
Februar 2025
Abbruch und Neubau MFH + Gewerbe in Konstanz
Über das Architekturbüro Uli Fritz in Konstanz wurden wir bereits im vergangenen Jahr mit der Tragwerksplanung für ein 5-geschossiges Mehrfamilienhaus mit Büroräumen (Gewerbeeinheit) im EG sowie Unterkellerung mit Technikräumen und Doppelparker beauftragt. Standort des Neubaus ist die Wallgutstraße in Konstanz.
Nun soll in diesem Jahr die Baustelle beginnen, das Bestandsgebäude wurde bereits abgebrochen, der Neubau kann starten. Das Objekt liegt zwischen zwei Bestandsgebäuden auf relativ schlechtem Baugrund, so dass im Vorfeld die Bestandsgebäude unterfangen und im Bereich des Neubaus Micropfähle gerammt werden mussten, auf denen dann wiederum die Bodenplatten aufliegen. In Zusammenarbeit mit der Fa. Bombardi wurden hier die Pfähle geplant und umgesetzt. Bis einschließlich Decke über EG wird das Gebäude in Massivbauweise erstellt, ab dem 1. OG bis zur Dachkonstruktion inkl. Gauben und Mansarden sind alle Bauteile als Holzkonstruktion mit Holz-Rahmenbau-Wänden und Brettsperrholzdecken geplant.
Januar 2025
Neuer Shooting-Star im Aqua Magis in Plettenberg – höchste Outdoorwasserrutsche Deutschlands
Mit der Fa. Klarer Freizeitanlagen aus Hallau in der Nord-Schweiz besteht seit über 20 Jahren eine konstante Zusammenarbeit, gemeinsam werden jährlich ca. 15 Projekte geplant und umgesetzt. Das Ingenieurbüro Sättele liefert hier für jegliche Arten von Rutschen die statische Berechnung für die Tragkonstruktion der Rutschen-Elemente sowie die statische Berechnung und die zugehörigen Schalungs- u. Bewehrungspläne für die entsprechende Gründung.
Aktuell wird der neue „Shooting Star“, eine Kamikaze-Rutsche im Aqua Magis in Plettenberg mit dem namensgebenden Stern von den Mitarbeitern der Fa. Klarer montiert. Das Startpodest befindet sich auf einer Höhe von knapp 22 Metern und wird somit die höchste Outdoorwasserrutsche Deutschlands werden. Die Bahnlänge beträgt 77 Meter, das durchschnittliche Gefälle liegt bei 38%, das Maximalgefälle bei 120%, es werden Geschwindigkeiten bis zu 40 km/h erreicht. Wenn alles planmäßig verläuft, wird die Rutsche noch vor den Osterferien eröffnet.
Zum Artikel aus der Lokalpresse Plettenberg vom 29.01.2025: Der Rutschenstern geht über dem Aqua Magis auf | LokalDirekt
Dezember 2024
Weihnachtsurlaub Ingenieurbüro Sättele 20.12.2024 – 06.01.2025
Nikolaustag 2024 –> ein weiteres ereignisreiches Jahr neigt sich dem Ende zu.
Unsere Highlights in 2024:
- Firmenjubiläum: 30 Jahre Ingenieurbüro Sättele
- Erweiterte Geschäftsführung: Bernd Sättele wird nun unterstützt von Thorsten Hasenfratz und Robert Weber
- Bernd Sättele: nun auch „Zertifizierter Tragwerksplaner im Denkmalschutz“
Trotz schwankender Auftragslage in der Baubranche durften wir auch in diesem Jahr viele interessante Bauvorhaben planen und während der Umsetzung begleiten. Halle, Büro, Wohngebäude, Kirche, Fitnesscenter… eine bunte Vielfalt an Projekten liegt hinter uns. Einige sind noch in Bearbeitung, andere wiederum starten im neuen Jahr. Liebe Geschäftspartner und Kunden, hiermit möchten wir uns für die Treue und die gute Zusammenarbeit bedanken, wir freuen uns auf viele weitere gemeinsame Projekte in 2025. Davor machen aber auch wir eine kleine Pause, wir wünschen eine schöne Vorweihnachtszeit, ein frohes Fest mit Familie und Freunden, und einen guten Rutsch ins neue Jahr.
Vom 20.12.2024 bis 06.01.2025 bleibt unser Büro geschlossen, ab Dienstag den 07.01.2025 sind wir wieder wie gewohnt für Sie da.
November 2024
Neubau von drei Mehrfamilienhäusern auf gemeinsamer Tiefgarage in Offenburg
Über die planschmiede hansert + partner mbb aus Ortenberg im Kinzigtal wurden wir mit der Tragwerksplanung sowie den Wärme- und Schallschutzberechnungen (Bauphysik) für drei Mehrfamilienhäuser mit insgesamt 37 Wohneinheiten beauftragt. Das gesamte Bauwerk ist in Massivbauweise geplant, EG, 1., 2., 3. OG sowie das Attikageschoss werden mit Kalksandstein-Wänden sowie Stahlbeton-Decken ausgeführt, einzelne aussteifende Trennwände sowie der Aufzugsschacht und der Treppenhauskern sind mit Stahlbeton-Wänden geplant. Unter den drei Wohngebäuden liegt eine gemeinsame Tiefgarage sowie unter jedem Gebäude die zugehörigen Keller- und Technikräume. Unter den einzelnen Räumen sind tragende Bodenplatten als Flachgründung geplant, auf der Nord-Ost-Seite des Bauvorhabens werden zur Baugrundverbesserung Brunnenringe als Tiefergründung eingesetzt. Die restlichen Teile des Untergeschosses im Bereich der Tiefgarage mit 41 Stellplätzen werden mit Stahlbeton-Wänden und -Stützen auf entsprechenden Streifen- und Einzelfundamenten gegründet, die Fahr- und Parkflächen werden mit einem Pflasterbelag ausgeführt.
Zum momentanen Zeitpunkt befinden wir uns auch bei diesem Projekt in der Planungsphase, Baubeginn hier wird ca. April/Mai 2025 sein.
Oktober 2024
Neubau Mehrfamilienhaus mit Tiefgarage in Freiburg
In Zusammenarbeit mit dem freien Architekten Gebhard Beck, beck.ostrowski.architekten aus Freiburg, planen wir den Neubau eines Mehrfamilienhauses mit 7 Wohneinheiten auf einer Tiefgarage. Gegründet wird das Bauwerk auf einer elastisch gebetteten Bodenplatte, das Untergeschoss wird komplett in Stahlbeton ausgeführt, wobei die Wände sowie die Stützen und Unterzüge und die Decke über der Tiefgarage in Ortbeton hergestellt werden, die Decke über den Kellerräumen ist als Halbfertigteildecke geplant. Die oberen Geschosse (EG, OG, DG) werden klassisch in Kalksandstein gemauert und mit einem Vollwärmeschutz versehen, in der Fensterfront an der Südseite stehen Stahlbeton-Stützen in Sichtqualität, der Aufzugsschacht sowie einige wenige aussteifenden Wände werden ebenfalls in Stahlbeton erstellt. Die zurückversetzte Dachgeschosswohnung erhält eine teilüberdachte Dachterrasse, das Flachdach wird analog zu den darunter liegenden Decken mit Beton-Halbfertigteilplatten ausgeführt, die auskragenden Teile werden vollflächig gedämmt.
September 2024
Neubau Scherenhalle in Brigachtal
Über das Architekturbüro Günter Limberger aus Donaueschingen wurden wir mit der Tragwerksplanung für eine weitere Halle eines Entsorgungsunternehmens beauftragt. Anforderung war hier eine freitragende Decke ohne jegliche Auflagerwände oder -stützen in trapezförmigem Grundriss. Gebäudelänge auf der Rückseite 40 Meter, Öffnung an der Front überbrückt mit einem Stahl-Fachwerkträger auf 19 Meter Spannweite, ausgeführt von der Stahlbau Münch GmbH aus Brigachtal. Die Außenwände mit einer Stärke von 40 cm und einer Höhe von 12 Meter werden als Halbfertigteil-Elementwände von der Fa. Elsäßer in Kirchen-Hausen hergestellt, die Spannbeton-Decken-Platten liefert die Fa. Kastell aus Veringenstadt am Bodensee. Die Bodenplatte sowie alle anderen Rohbauarbeiten wie das Aufstellen und Vergießen der Elementwände, Verlegen der Deckenplatten usw. wurden von der Fa. Reitze-Bau aus Brigachtal ausgeführt.
August 2024
Neubau Mehrfamilienhaus mit Tiefgarage in Eutingen
In Zusammenarbeit mit dem Architekturbüro mh Architektur, Manuel Huber aus Geisingen-Gutmadingen, planen wir ein Mehrfamilienhaus mit 9 Wohnungen in Holzbauweise. Das 3-geschossige Gebäude, das im schwäbischen Eutingen im Gäu entstehen soll, besteht aus Holzrahmenbau-Wänden und Brettsperrholz-Decken. Diese stehen auf einem massiven Untergeschoss, in dem sich in der einen Hälfte Keller- und Technikräume befinden, hier wird auf einer tragenden Bodenplatte gegründet. Auf der anderen Gebäudeseite ist eine Tiefgarage mit 9 Stellplätzen geplant, dort sind die Stahlbeton-Außenwände auf Streifenfundamenten, die Innenstützen auf Einzelfundamenten gegründet, der Bodenbelag wird mit Pflastersteinen ausgeführt.
Aktuell befinden wir uns in der Planungsphase für dieses Bauvorhaben, Baustart wird Anfang des Jahres 2025 sein.
Juli 2024
Zertifizierter Tragwerksplaner im Denkmalschutz
Bernd Sättele, seit heute nicht mehr „nur“ Dipl.-Ing. (FH) und Geschäftsführer unseres gleichnamigen Ingenieurbüros, sondern nach über 30 Jahren Berufserfahrung und einigen bereits umgesetzten Projekten im Bereich des Denkmalschutzes, ab sofort auch offiziell einer von deutschlandweit nur 150 Absolventen der Seminarreihe „Tragwerksplanung im Denkmalschutz“.
An der Probstei Johannesberg besuchte er die Seminarreihe Tragwerksplaner in der Denkmalpflege. Diese bestand aus je 7 Lehrgängen à drei Tagen, es wurden sämtliche Tätigkeitsbilder der Tragwerksplanung im Denkmalschutz abgehandelt.
Wir gratulieren herzlich zu diesem Abschluss und freuen uns auf viele neue interessante Bauvorhaben im Bereich des Denkmalschutzes.
Juni 2024
Firmenjubiläum – 30 Jahre Ingenieurbüro Sättele
Am Freitag den 07.06.2024 feierte das Ingenieurbüro Sättele sein 30-jähriges Jubiläum. Bei strahlendem Sonnenschein erschienen über 200 Gäste. Hier der Pressetext der Badischen Zeitung von Christa Maier, etwas gekürzt:
Vor 30 Jahren gründete Bauingenieur Bernd Sättele sein Ingenieurbüro für Tragwerksplanung, Hoch- und Tiefbau sowie Vermessungen und Bauphysik. Seither hat sich das Unternehmen durch zahlreiche Spezialaufträge nicht nur in der Region sondern auch auf internationalem Parkett einen Namen gemacht. Das Firmenjubiläum im Beisein von Geschäftspartnern, Handwerkern und Verwandten gefeiert und gleichzeitig die Erweiterung der Geschäftsführung bekannt gegeben. „Bei 250 Projekten im Jahr wird es zunehmend schwieriger, den Überblick zu behalten“, begründete Firmenchef Bernd Sättele die Einbindung seiner beiden Mitarbeiter Thorsten Hasenfratz und Robert Weber in die Geschäftsführung.
Bei der Feier nahm Sättele seine Gäste mit auf eine Zeitreise durch 30 Jahre, in denen er zusammen mit seinem inzwischen 13-köpfigen Team 4000 Projekte realisierte. Büro- und Lagerhallen, Reihen- und Mehrfamilienhäuser, Reithallen, Schwimmbäder, Tiefgaragen und Kliniken tragen die Handschrift des Unadinger Ingenieurbüros, das auch die Statik für jährlich 20 bis 30 Wasserrutschen übernimmt, die weltweit für Rutschvergnügen sorgen. Das anspruchsvollste Projekt sei bisher die Sanierung des Chorherrenstifts in Öhningen aus dem 12. Jahrhundert gewesen. Dies ermunterte ihn auch für die Weiterbildung zum zertifizierten Tragwerksplaner im Denkmalschutz. „Davon gibt es nur 150 in Deutschland“, sagt er. Unerfüllt blieb bisher sein Traum, noch vor Renteneintritt einmal ein Hochhaus zu bauen. „In Unadingen dürfte das schwierig werden“, glaubt er, aber mit dem anstehenden Hochhausprojekt Hohenzollernblick in Rosenfeld dürfte der Traum noch Wirklichkeit werden.
Mai 2024
Sanierung Kirchbauernhof in Lausheim
Über das Architekturbüro Gottfried Laws aus Stühlingen wurden wir beauftragt die Sanierung eines Kirchbauernhofs in Lausheim aus statischer Sicht zu begleiten. Das Gebäude stammt aus dem Jahr 1783 und wurde über einen Zeitraum von fünf Jahren neu ertüchtigt, jetzt stand die große Eröffnungsfeier an. Am Altbau wurden die bestehenden Außenwände und Fundamente ringsum unterfangen, in der Durchfahrt zur Göpelhalle wurden neue Stahl-Stützen eingebaut, die Decken wurden mit Stahlträgern abgefangen. Das Treppenhaus wurde komplett neu erstellt, ebenso ein zusätzlicher Aufzugsschacht an der Westseite. Der Eingangsbereich wurde neugestaltet, außerdem kam ein neuer Wintergarten hinzu. Die bestehenden Holz-Balken-Decken wurden als Holz-Beton-Verbund-Decken ertüchtigt, teilweise mit der Unterseite in Sichtbeton.
April 2024
Neubau Longierhalle in Dachsberg-Schmalenberg
Ein weiteres Holzbau-Projekt durften wir für die Fa. Amann aus Weilheim-Bannholz umsetzen, dieses Mal den Neubau einer Pferde-Longierhalle. Die Dachkonstruktion dieses runden Gebäudes mit 16 Meter Durchmesser besteht aus Brettschichtholz-Bindern, die mittig an einem Stahlring zusammenlaufen. Zur Aussteifung dienen Pfetten, die zwischen den Bindern montiert wurden, sowie eine darüberliegende Schalung. Die Binder liegen außen auf Stahlstützen (HEA 300) auf, diese sind auf Stahlbeton-Einzelfundamenten gegründet.
März 2024
Neueröffnung Schmidts-Markt in Häusern
Nach knapp 10 Wochen Umbauzeit zur Modernisierung, Vergrößerung und energetischen Sanierung wurde der Schmidts-Markt in Häusern nun neu eröffnet. Auf Basis der Planung des Architekturbüro Gerd Schwab wurde ringsum ein Anbau aus heimischen Hölzern umgesetzt, der ein Flachdach als Holzkonstruktion erhielt. Diese wurde am Bestand sowie außen auf neuen Holzstützen aufgelagert. Die Gründung erfolgte auf einem Fundamentbalken. Unter der erweiterten Verkaufsfläche sowie der Warenanlieferung wurde eine tragende Stahlbeton-Bodenplatte erstellt, außerdem für die neue LKW-Zufahrt eine Winkelstützwand und eine betonierte Rampe. Im Innenbereich wurden einige tragende Bauteile im Bestand entfernt und durch filigranere Stahlkonstruktionen ersetzt. Für mehr Nachhaltigkeit wurden energieeffiziente Kühlgeräte installiert, sowie Photovoltaik und Wärmerückgewinnung integriert.
Februar 2024
Anbau Bürogebäude in VS-Villingen
In Zusammenarbeit mit dem Architekturbüro J. Müller aus VS-Villingen planen wir den Anbau eines weiteren Bürotrakts an ein bestehendes Firmengebäude. Das Projekt wird komplett massiv in Stahlbeton umgesetzt, Besonderheiten sind hier die großen Spannweiten des auskragenden Bereichs im Obergeschoss. Knappe acht Meter Auskragung ohne Stützen sind gefordert.
Januar 2024
Umbau ehemalige Molkerei zu Wohnhaus
In Löffingen-Unadingen wird eine ehemalige Molkerei zu einem Wohnhaus umgebaut, wir begleiten das Projekt vom Bauantrag über die Tragwerksplanung, Werksplanung bis hin zu Bauleitung. Es wurde eine neue tiefer liegende Bodenplatte geplant, im EG gibt es eine neue Raumeinteilung im Stil eines offenen Wohnkonzepts, eine neue Stahlbeton-Geschossdecke wird geplant. Die Holzkonstruktion im Dachgeschoss wird an den statisch notwendigen Punkten ertüchtigt, außerdem werden 2 neue Gaupen ergänzt.
Dezember 2023
Zertifikatslehrgang –> Tragwerksplaner der Denkmalpflege
Dipl.-Ing. (FH) Bernd Sättele, zukünftig nicht mehr „nur“ Bauingenieur, sondern auch zertifiziert spezialisiert auf Objekte mit Denkmalschutz. Um das Spektrum unseres Ingenieurbüros zu erweitern, besucht Bernd Sättele einige Kurse an der Probstei Johannesberg in Fulda. Eine Seminarreihe in Zusammenarbeit mit der Ingenieurkammer und dem Landesamt für Denkmalpflege.
November 2023
Fertigstellung Verwaltungsgebäude in Freiburg
Von der Firma Holzbau Amann aus Weilheim-Bannholz erreichten uns heute die Bilder eines unserer fertiggestellten Projekte, vielen Dank dafür! Er handelt sich hier um den Neubau des Verwaltungsgebäudes der Firma Ritter Elektrotechnik in Freiburg in Holzbauweise. Das 4-geschossige Gebäude besteht aus Brettsperrholzwänden, die Decken lieferte die Fa. Lignotrend.
Oktober 2023
Sanierung, Umbau und Erweiterung Zweifamilienwohnhaus in Emmendingen
Die Firma Lumatics-Media stellt uns diesen Monat freundlicherweise ihre Fotos eines sanierten Wohnhauses zur Verfügung. Das Zweifamilienhaus in Emmendingen wurde grundsaniert, es wurden Räume und Fensteröffnungen vergrößert, tragende Wände durch Stahlträger ersetzt, Balkone angepasst, Innen- und Außentreppen erneuert. Außerdem wurde ein Raum als Pelletslager erweitert, mehrere Versorgungsschächte aus Ortbeton an den Bestand ergänzt, im Garten wurde ein Pool mit zugehörigem Technikhaus neu errichtet.
Qualitativ hochwertige Fotografien Ihrer Objekte erhalten Sie bei www.lumatics-media.com
September 2023
Projektentwicklung Hochhäuser in Holz-Hybrid-Bauweise
Unser aktuell „höchstes“ Projekt: die Projektierung zweier Hochhäuser in Holzhybridbauweise mit 10 bzw. 15 Etagen, hier sollen unter anderem einige Maisonettewohnungen entstehen, die Planer legen Wert auf eine familienfreundliche und altersgerechte Planung. Durch den Einsatz von Buche-Bauholz-Stützen und SlimFloor-Decken in Holz-Beton-Verbund-Bauweise, aufgelagert auf Stahlbeton-Verbund-Unterzügen sind flexible Grundrisse möglich. Besondere Herausforderung bei diesem Projekt ist der Standort in der Erdbebenzone II nach DIN 4149.
August 2023
Erweiterung Donaubad Ulm
Im Donaubad in Ulm wurden zusätzlich zu einer Dachsanierung die alten Rutschen im Außenbereich rückgebaut, es entstand ein neuer Rutschenturm mit neuem Zugang zu den 5 neuen Rutschen (Röhrenrutsche, Turborutsche, Racer, MagicTwice, MagicEye). Für das Auslaufgebäude gab es ebenfalls einen neuen Anbau, hergestellt in Holz-Rahmen-Bauweise, gegründet auf einer Bodenplatte auf einer Micropfahlgründung, auch die neuen Außenfundamente mussten allesamt auf Micropfählen gegründet werden, da der tragfähige Baugrund sich erst in einigen Metern Tiefe befindet. Im Inneren des Gebäudes entstand eine neue Treppenanlage. Die bestehende Tragglieder des Bestandsgebäudes (Podeste, Stützen, etc.) mussten statisch untersucht werden und teilweise ertüchtig werden, bevor sie für die neue Belastung freigegeben werden konnten.
Juli 2023
Eröffnungsfeier Energiedienst Donaueschingen
Die ED Netze GmbH hat ihren neuen Standort in Donaueschingen offiziell eingeweiht. Der Umzug in das moderne Gebäude markiert einen wichtigen Meilenstein für den Stromnetzbetreiber und unterstreicht das langfristige Engagement von ED Netze in der Region. Für rund 18 Millionen Euro errichtete die Netzgesellschaft der Energiedienst-Gruppe ein aus mehreren Gebäuden bestehendes Areal. Die Ingenieurbüro Sättele GmbH war hier mit der Tragwerksplanung sowie mit den SiGeKo-Leistungen beauftragt.
Juni 2023
Neubau Wohn- und Geschäftshaus in Bad Dürrheim
In Zusammenarbeit mit dem Architekturbüro Dieter Merz aus Bad Dürrheim entstand in Bad Dürrheim der Neubau eines 3-geschossigen Geschäfts- und Wohnhauses mit darüberliegendem Penthaus und einer Tiefgarage im UG. Die Geschossdecken wurden ab dem EG als Spannbetondecken ausgeführt, das Penthaus wurde als Holz-Rahmen-Konstruktion mit einer Massivholzdecke erstellt. Die vorgesetzten Balkone wurden als Komplett-Fertigteile hergestellt.
Mai 2023
Erweiterung der Firmenflotte
Ein weiteres E-Auto ergänzt die „neue Ökologische Fahrzeugflotte“ des Ingenieurbüro Sättele. Als Partner vertrauen wir hier auf das Autohaus Mayer in Löffingen sowie das Autohaus Wittmer in Titisee-Neustadt. Unser Logo wurde für den Firmenschriftzug angepasst von der Agentur Brotschrift aus Titisee-Neustadt, passend für den jeweiligen Fahrzeugtyp auf Folie gedruckt und aufgeklebt von der Fa. MBE in Donaueschingen.
April 2023
Sanierung Parkschwimmbad Donaueschingen
Eine weitere aktuell laufende Baustelle ist das Parkschwimmbad in Donaueschingen. Hier werden sowohl das Schwimmer- als auch das Nichtschwimmerbecken erneuert, das Filterhaus wird erweitert, die Dachflächen werden mit Solaranlagen belegt, um das Wasser zu heizen. Das Bad wird zusätzlich zur bestehenden Rutsche mit einer neuen Breitwellenrutsche aufgewertet, ebenso wird es zwei neue Kinderbecken geben, die mit einer Rutsche verbunden sind, der Kinderbereich wird mit verschiedenen Spielmöglichkeiten wie z.B. Spritztieren komplett neugestaltet. Die Ingenieurbüro Sättele GmbH ist bei diesem Projekt mit der Tragwerksplanung sowie mit den SiGeKo-Leistungen beauftragt.
März 2023
Neubau Altersgerechtes Wohnen in Eggingen
Baustart für ein soziales Projekt in Eggingen: Neubau von 2 Gebäuden mit 26 Wohneinheiten für Betreutes Wohnen, einem Gemeinschaftsraum und Büroräumen. Der rechte Flügel steht auf einer neuen Tiefgarage mit 10 Stellplätzen, unter dem linken Flügel befinden sich für jede Wohneinheit ein separater Kellerraum und Technikräume. Die Bodenplatte sowie die Kelleraußenwände werden in Ortbeton und als WU-Konstruktion ausgeführt, da hier mit Grundwasser zu rechnen ist. Das Gebäude wird in 2 Bauabschnitten erstellt, die Fertigstellung des Rohbaus ist auf Ende des Jahres 2023 geplant, im Herbst 2024 soll das komplette Gebäude bezugsfertig sein.
Februar 2023
Sanierung Sommergasse Bräunlingen
Ebenfalls ein Projekt aus dem vergangenen Jahr, nachträglich erreichten und die professionellen Bilder des Fotografen Bernhard Strauss aus Freiburg. In Zusammenarbeit mit dem Architekturbüro Gäbele & Raufer aus Donaueschingen realisierten wir den Umbau eines denkmalgeschützten Gebäudes zu 4 neuen Wohneinheiten. Die Werterhaltung durch den Denkmalschutz hatte hier sehr hohe Priorität. Die Geschossdecken mussten alle ertüchtigt werden, zum Teil mit Schrägschrauben verstärkt und als Holz-Beton-Verbund-Decke ausgeführt werden. Die Dachkonstruktion wurde ebenfalls saniert, die Mittelpfetten verstärkt und neue RWA eingebaut. Außerdem erhielt das Gebäude einen komplett neuen Treppenhauskern und einen neuen Aufzug.
Januar 2023
Neubau Wohnprojekt am Stutzenweiher
Bereits im vergangenen Jahr begann für uns ein neues Projekt, der Neubau von 4 Blöcken mit insgesamt 119 Wohneinheiten in Balingen. Block 1-4 bestehend aus insgesamt 6 Gebäuden mit darunterliegenden Tiefgaragen. In einem späteren Bauabschnitt werden Block 5 und 6 in Form von Reihenhäusern realisiert. Baubeginn des ersten Blocks war im November 2022, die Fertigstellung der Gebäude in Block 1-4 ist im Jahr 2026 geplant.
Dezember 2022
Mit einem Bild vom Weg zu unserer letztjährigen Weihnachtsfeier (es fehlen Klemens Minzer, Andrea und Camilla Sättele, der Chef persönlich steht hinter der Kamera) verabschieden wir uns in den Weihnachtsurlaub.
Wir möchten uns bei allen Kunden und Geschäftspartnern für die gute Zusammenarbeit im vergangenen Jahr bedanken, ein weiteres Jahr voller interessanter Projekte liegt hinter uns. Dank Ihrem Vertrauen in die Ingenieurbüro Sättele GmbH werden wir im Januar mit einigen neuen Bauvorhaben dort anknüpfen, wo wir vor Weihnachten aufgehört haben – mit neuer Energie und voller Tatendrang.
Bis dahin wünschen wir Ihnen erholsame Feiertage, ein schönes Fest im Kreise Ihrer Familie und Freunde und einen guten Start ins Jahr 2023.
Vom 22.12.2022 bis 05.01.2023 bleibt unser Büro geschlossen, ab Montag, den 09.01.2023 sind wir wieder wie gewohnt für Sie da.
November 2022
Neubau Büro- u. Wohngebäude am Riedpark in Lauchringen
Für das Architekturbüro Peter Schanz aus Hohentengen soll hier ein weiteres Projekt realisiert werden, der Neubau eines Büro- und Wohngebäudes in Massivbauweise. Das Untergeschoss wurde komplett auf Einzel- und Streifenfundamenten gegründet, in der Tiefgarage mit 14 PKW-Stellplätzen wird ein Pflasterbelag eingebaut, in den Keller- und Technikräumen wurden Betonböden gegossen. Die aussteifenden Wände werden im gesamten Gebäude in Stahlbeton hergestellt, Mauerwerkswände im UG in Kalksandstein, Außenwände ab dem EG aus porosiertem Ziegelmauerwerk, Wohnungstrennwände wiederum aus Stahlbeton. Im Dachgeschoss treffen mehrere Materialien aufeinander, Aussteifungswände bleiben nach wie vor in Stahlbeton, die restlichen Tragwände werden zum Teil als Ziegelmauerwerk, zum Teil aber auch als Holz-Rahmen-Bau-Konstruktion umgesetzt. Etwas Herausforderung mit all den Anschlüssen, Übergängen und Wärmebrücken, aber auch diese können wir meistern.
Oktober 2022
Neubau Feuerwehrgerätehaus Löffingen-Unadingen
Bereits im Jahr 2018 wurden wir von der Stadt Löffingen beauftragt einen Entwurf für ein neues Feuerwehrgerätehaus zu erstellen. Über eine erste Standortanalyse weiter zum Bauantrag, die darauffolgende Werkplanung, statische Berechnung und zugehörigen Statikpläne, die energetische Fachplanung sowie letztendlich die Bauleitung während der Erstehung des Gebäudes inklusive der SiGeKo-Leistungen bis hin zur Übergabe im Oktober. Bei diesem Projekt konnten wir der Bauherrschaft all diese Sparten der Gebäudeplanung liefern. Alles aus einer Hand. Ein Ansprechpartner. Ein gelungenes Ergebnis.
September 2022
An- u. Umbau Gasthaus Ochsen + Neubau MFH mit 13 Wohnungen
Für die Fa. BauPartner aus Geisingen-Gutmadingen bearbeiten wir die Tragwerksplanung für den An- und Umbau des bestehenden Gasthaus Ochsen mit 11 Hotelzimmern sowie den Neubau eines anschließenden Mehrfamilienhauses mit 13 Wohnungen. Der Neubau gründet mit Betonbalken auf Brunnenringen, die Einstellhalle wird als Stahlbetonkonstruktion erstellt. Die Außenwände der darüberliegenden Geschosse werden mit Poroton-Steinen gemauert, dies trägt mit großen Stücken dazu bei mit dem Neubau ein KFW-Standard 40EE zu erreichen. Die Wohnungstrennwände und Geschossdecken werden wieder aus Stahlbeton hergestellt. Die Dachkonstruktion besteht aus einem Pfettendach mit klassischer Ziegeleindeckung.
August 2022
Betriebsferien 01.08.2022 – 05.08.2022
*Urlaubszeit* – Auch wir gönnen uns eine Woche Auszeit.
Vom 01.08. bis 05.08.2022 bleibt unser Büro geschlossen.
Ab Montag den 08.08.2022 sind wir wieder wie gewohnt für Sie da.
Juli 2022
Richtfest Logistikzentrum ED-Netze Donaueschingen
Im Auftrag des Architekturbüro Limberger bearbeiten wir den Neubau der Gebäude der ED-Netze für den Standort Donaueschingen in den Bereichen Tragwerksplanung und SiGeKo. Im Juli wurde Richtfest gefeiert für das Logistikgebäude, es folgen die Fahrzeughalle, das Bürogebäude, die Containerüberdachung sowie die Carports. Bis März 2023 sollen dann alle Gebäude bezugsfertig sein.
Juni 2022
Neubau Verwaltungsgebäude in Freiburg
Für die Firma Holzbau Amann aus Weilheim-Bannholz übernehmen wir die Tragwerksplanung für den Neubau eines Verwaltungsgebäudes in Freiburg. Auch die Baueingabeunterlagen wurden vom Ingenieurbüro Sättele erstellt. Das 4-geschossige Gebäude besteht aus Brettsperrholzwänden, die Decken liefert die Fa. Lignotrend, zur Aussteifung dient ein massiver Stahlbetonkern im Treppenhaus, der auf einer flächigen Bodenplatte gegründet wird. Die Holzkonstruktion mit den Stützen im EG wird auf Einzelfundamenten gegründet.
Mai 2022
Neubau Straßenmeisterei Schönau
In Zusammenarbeit mit dem Architekturbüro Eisenberg – Rummel soll im Jahr 2023 der Baustart für die neue Straßenmeisterei in Schönau fallen. Aktuell befinden wir uns an der Vorbemessung der tragenden Bauteile, Ausarbeitung der Anschlussdetails sowie der Gründungsplanung mit Brunnenringen. Da auf dem Grundstück des Neubaus zuvor ein älteres Gebäude abgebrochen wird und sich teilweise jetzt schon Auffüllungen auf dem Baugrundstück befinden, die statisch nicht belastbar sind, wird das Gebäude über Brunnenringe auf dem ca. 3 Meter tiefer gelegenen Wieseschotter gegründet.
April 2022
Neubau Mehrfamilienhaus mit Tiefgarage in Bräunlingen
In der Hauptstraße in Bräunlingen soll auf begrenztem Grundstück ein Mehrfamilienhaus mit 6 Wohneinheiten auf 3 Geschossen sowie einer Tiefgarage und Kellerräumen errichtet werden. Die Decke über EG kragt auf der Südseite 4 Meter frei über das TG aus, die Stahlbetonwände im 1. OG dienen dazu dies wieder rückzuverankern. Die Außenwände werden mit Thermodämm-Ziegeln gemauert, an statisch erforderlichen Stellen auch in Ortbeton mit Wärmedämmverbundsystem.
März 2022
Erweiterung Donaubad in Ulm
Für die Firma Klarer Freizeitanlagen setzen wir in Ulm die Erweiterung des Donaubads um. Geplant sind insgesamt 6 neue Rutschen, die in 3 Bauabschnitten erstellt werden sollen. Dies beinhaltet für uns die statische Berechnung von 7 neuen Pylonen, zugehörigen Auslegern, Fundamenten, sowie ein komplett neuer Treppenturm und die Holzkonstruktion des Auslaufgebäudes.
Februar 2022
Neubau Mehrfamilienhaus mit 22 Wohneinheiten + Tiefgarage in St. Georgen
Die Firma Jetter aus Rosenfeld beauftragt uns mit der Tragwerksplanung für den Neubau eines Mehrfamilienhauses in der Schrambergerstraße in St. Georgen. Das 5-stöckige Gebäude besitzt 22 Wohneinheiten und eine Tiefgarage mit Doppelparker-Stellplätzen. Die beiden hangseitig einbindenden Untergeschosse werden in Stahlbeton ausgeführt, ab dem Erdgeschoss (über 1. und 2. OG bis ins DG) sind Holzrahmenbauwände geplant. Die Geschossdecken bis über 2. OG werden massiv in Stahlbeton hergestellt, die Dachkonstruktion in Holzbauweise.
Januar 2022
Erweiterung Fa. Global-Plus, Donaueschingen-Aasen
Für die BauPartner GmbH übernehmen wir die Tragwerksplanung für die 2-stöckige Erweiterung eines Firmengebäudes. Gegründet wird der Anbau über eine Bodenplatte, die auf einer Reihe von Brunnenringen 3-4 Meter bis auf das tragende Tongestein tiefer geführt wird. Die oberen Geschosse werden in Massivbauweise realisiert. Der neue Eingangsbereich wird mit einer Stahlkonstruktion überdacht, die eine Spannweite von 21 Metern überbrückt.
Dezember 2021
…das Jahr verging wie im Fluge…
Kaum zu glauben aber wahr, 2021 ist nun auch schon bald wieder Geschichte. Ein weiteres Jahr mit Höhen und Tiefen neigt sich dem Ende zu, einige Einschränkungen im (Berufs-)Alltag aufgrund des hartnäckigen Virus waren nach wie vor zu spüren und sind weiterhin an der Tagesordnung. Das gesamte Jahr 2021 über hat uns Covid-19 begleitet, Besprechungstermine und Meetings wurden überwiegend online abgehalten, Kontakte teils auf ein Minimum beschränkt. Trotz der außergewöhnlichen Situation konnten wir wieder viele unterschiedliche Projekte planen und umsetzen, unsere fortlaufende Auftragsliste ist im Laufe des Jahres um weitere 300 Zählernummern gestiegen um nur eine Zahl zu nennen. Hierfür möchten wir uns an dieser Stelle vor allem bei Ihnen für die gute Zusammenarbeit bedanken.
Eine weitere erfreuliche Nachricht: das Ingenieurbüro Sättele ist im vergangenen Jahr nochmals gewachsen, seit Oktober diesen Jahres unterstützt uns Doris Wengrzik (Master of Science) in Sachen Tragwerksplanung und Wärmeschutz, somit zählt unser Team inzwischen 14 Mitarbeiter, welche sich in 2022 um die anstehenden Projekte kümmern werden, es stehen bereits wieder einige interessante Bauvorhaben in den Startlöchern. Hoffen wir gemeinsam auf ein begegnungsreicheres Jahr 2022!
Nun verabschieden wir uns in den Weihnachtsurlaub, von Mittwoch, den 22.12.2021 bis einschließlich Freitag, den 07.01.2022 bleibt unser Büro geschlossen. Ab Montag, den 10.01.2022 sind wir wieder wie gewohnt für Sie da.
Wir wünschen Ihnen erholsame Feiertage, weiterhin viel Gesundheit und einen guten Start ins neue Jahr.
November 2021
Neubau Mehrfamilienhaus mit TG in Engen
Für das Architekturbüro Dieter Heller aus Engen realisieren wir hier bereits das 2. Mehrfamilienhaus mit darunterliegender Tiefgarage. Das Untergeschoss wird in Stahlbeton hergestellt, ab dem EG werden die Außenwände als Holzrahmenbauwände ausgeführt, die Innenwände und Wohnungstrennwände in Brettsperrholz. Für die Geschossdecken wird das System der Firma Lignatur verwendet.
Oktober 2021
Neubau Einfamilienhaus in VS-Villingen
Für das Architekturbüro Uwe Schlenker aus Villingen-Schwenningen wurden wir mit der Tragwerksplanung eines etwas exklusiveren Einfamilienhauses beauftragt. Das Bauvorhaben besteht aus 2 Gebäuden, das Vorderhaus 2-geschossig, über einen verglasten Verbindungsgang entsteht der Durchgang zum Gartenhaus. Die Südseite besteht hier ebenfalls aus einer Glasfassade mit direktem Zugang zum Pool, statisch wird das Gebäude auf der Süd- und Ostseite von innenliegenden Stahlbeton-Rundstützen gehalten. Die großen Kragarme der Dächer von über 5 Metern wurden mit entsprechenden Stahlkonstruktionen realisiert.
September 2021
Neubau Feuerwehrgerätehaus Unterbränd
Mit dem Spatenstich für das Feuerwehrgerätehaus in Unterbränd starten wir im Auftrag der Stadt Bräunlingen ein neues Projekt. Nach dem Neubau des Feuerwehrgerätehauses in Unadingen, welcher bereits im Juni begann, wurde auch hier das Ingenieurbüro Sättele mit der kompletten Planung beauftragt. Dies beinhaltet die Entwurfsplanung, Bauantragsphase, Werkplanung, Tragwerksplanung, die bauphysikalischen Nachweise (Wärmeschutzberechnung, Energieausweis) sowie die Bauleitung während der gesamten Bauphase.
August 2021
Betriebsferien vom 09.08.2021 – 20.08.2021
Mit einem freudigen Ereignis beenden wir das erste Halbjahr zur Sommerpause. Eva Meister wurde am 01.08.2021 für 10-jährige Betriebszugehörigkeit geehrt. Wir hoffen sie bleibt noch mindestens weitere 10 Jahre dem Ingenieurbüro Sättele treu. Mit einem gemeinsamen Mittagessen verabschieden wir uns in die Betriebsferien, in KW 32 und 33 bleibt unser Büro geschlossen.
Ab Montag, den 23.08.2021, sind wir wieder wie gewohnt für Sie da.
Juli 2021
Fortbildungen unserer Mitarbeiter
Frei nach dem Motto „Stillstand heißt Rückschritt“ sind wir bemüht unsere Mitarbeiter in regelmäßigen Abständen zu schulen und weiterzubilden. Somit erarbeitete sich Robert Weber an der Bildungsakademie in Rottweil den Titel „Gebäudeenergieberater für Wohn- und Nichtwohngebäude“.
Annette Pfrengle nahm an 2 Lehrgängen zum Thema Arbeitssicherheit teil und erlangte dadurch am Ende den Titel „Sicherheits- und Gesundheitsschutz-Koordinator“.
Wir danken den beiden für ihren Einsatz und freuen uns über die zusätzliche Qualifikation unserer Mitarbeiter.
Juni 2021
Neubau Seniorenwohnanlage in Immendingen
Von der Werner Wohnbau GmbH aus Niedereschach wurden wir beauftragt die Tragwerksplanung sowie den Schallschutznachweis für den Neubau einer Seniorenwohnanlage in Immendingen zu übernehmen. Es handelt sich hierbei um ein 4-geschossiges Gebäude in Massivbauweise mit Außenwänden aus Kalksandstein mit Vollwärmeschutz und einer Flachdachdecke aus Stahlbeton. Die darunter liegende Tiefgarage sowie die Kellerräume werden als Stahlbeton-Halbfertigteile hergestellt. Unter den beiden Stützenreihen in der Tiefgarage werden auf Grund der massiven Lasten aus den darüberstehenden Gebäuden Stb.-Verdickungen unter der Bodenplatte entstehen. Hier sind wir bereits in Leistungsphase 5 angelangt, die statische Berechnung sowie die zugehörigen Positionspläne werden noch in diesem Monat zum Prüfingenieur verschickt damit dem Baubeginn im September nichts im Wege steht.
Mai 2021
Neubau Einfamilienhaus in Holzbauweise mit Strohballendämmung
Für die Architekten des Atelier Azwo Bucher Fehrenbach übernehmen wir die Tragwerksplanung eines Einfamilienhauses mit Einliegerwohnung in Holzbauweise mit Strohballendämmung. Der Keller wird als WU-Konstruktion in Stahlbetonbauweise erstellt, die oberen Geschosse werden als Holzkonstruktion realisiert. Das Wohngebäude erstreckt sich über 2 Geschosse, im Dachspitz über den Garagen ist eine Werkstattfläche geplant. Das Gebäude wird in Altensteig/Wart entstehen, der Baustart ist bereits für kommenden Monat geplant.
April 2021
Neubau Straßenmeisterei Calw
Als Bietergemeinschaft zusammen mit dem Architekturbüro Zeller I Eisenberg aus Müllheim und der Ernst² Architekten AG aus Stuttgart konnten wir uns mit einer erfolgreichen Vorstellung über mehrere Runden gegen die Konkurrenz durchsetzen und den Wettbewerb für uns entscheiden. Ab sofort starten die Planungen und Entwicklungen für den Neubau auf dem ca. 18.500 m² großen Grundstück mit leichter Hanglage. Erstellt werden soll eine neue Straßenmeisterei mit einem 3-geschossigen Verwaltungs- und Sozialtrakt, einer Zentralwerkstatt, Waschhalle, LKW-Unterstellhalle und einer Salzhalle. Das Gebäude wird in Stahlbetonbauweise mit Holzdach und Holzfassade geplant. Wir unterstützen die Architekten in der Entwurfsphase und der Vordimensionierung, eine anspruchsvolle Aufgabe bei einem Hauptgebäude mit einer Länge von ca. 125 Meter und einer Spannweite von 30 Meter mit 7,50 Meter Auskragung (bzw. 25 Meter Spannweite + 7,50 Meter Auskragung bei den Holz-Fachwerkträgern). Dazu kommen noch die Nebengebäude und die Salzhalle. Der Baustart ist für Sommer 2022 geplant.
März 2021
Sanierungspreis 2020 Rathaus Löffingen
Im vergangenen Jahr wurde die Sanierung des Rathaus Löffingen fertiggestellt, bei der auch wir als Tragwerksplaner maßgeblich beteiligt waren. Nur erhält die Zimmerei Fürderer aus Titisee-Neustadt für die Ausführung der Zimmererarbeiten den „Sanierungspreis 2020“ der Rudolf Müller Mediengruppe. Wir gratulieren herzlich! Hier der Link zur Preisverleihung, die Vorstellung des Projekts beginnt im Video ab 32:30. https://www.youtube.com/watch?v=dG8J4TYywYE
Februar 2021
SiGeKo-Leistungen
Ein weiteres Standbein unserer GmbH ist der Bereich SiGeKo – die Tätigkeiten als Sicherheits- und Gesundheitsschutzkoordinator. Wir unterstützen die Planer in sicherheitstechnischer Hinsicht sowohl in der Planung als auch während der Ausführung, erstellen den SiGe-Plan und halten regelmäßige Baustellenbesuche ab. Aktuell sind wir in der Sporthalle der Eichendorffschule in Donaueschingen sowie in Neudingen bei der Sanierung der Gnadentalkapelle als SiGeKo tätig, außerdem startet im März der Neubau des Umspannwerks des Energiedienstes in Löffingen, auch dort wurden wir mit den SiGeKo-Leistungen beauftragt.
Januar 2021
Umbau und Sanierung Ökonomiegebäude in Löffingen-Göschweiler
Das neue Jahr startet unter anderem mit einem interessanten Umbauprojekt. Auch Sanierungen gehören zu unserem Alltagsgeschäft, aktuell arbeiten wir am Umbau eines alten Ökonomiegebäudes in Löffingen-Göschweiler, dort sollen außerdem zusätzlich 2 neue Wohnungen entstehen. Die Standsicherheit des gesamten Bauvorhabens musste neu nachgewiesen werden, statische Berechnung sowie die zugehörigen Pläne werden dem zuständigen Prüfingenieur vorgelegt.
































































